延時(연시): 시간을 늘리다
현대인은 빠르게 흘러가는 삶의 속도 속에서 자신을 잃어버린 채 부유한다. 본 프로젝트는 대화와 성찰을 통해 삶의 속도를 늦추는 ‘다도(茶道)’의 가치에 주목하여, 인간의 시간을 확장하는 건축적 장치로서 티뮤지엄 ‘연시’를 제안한다.
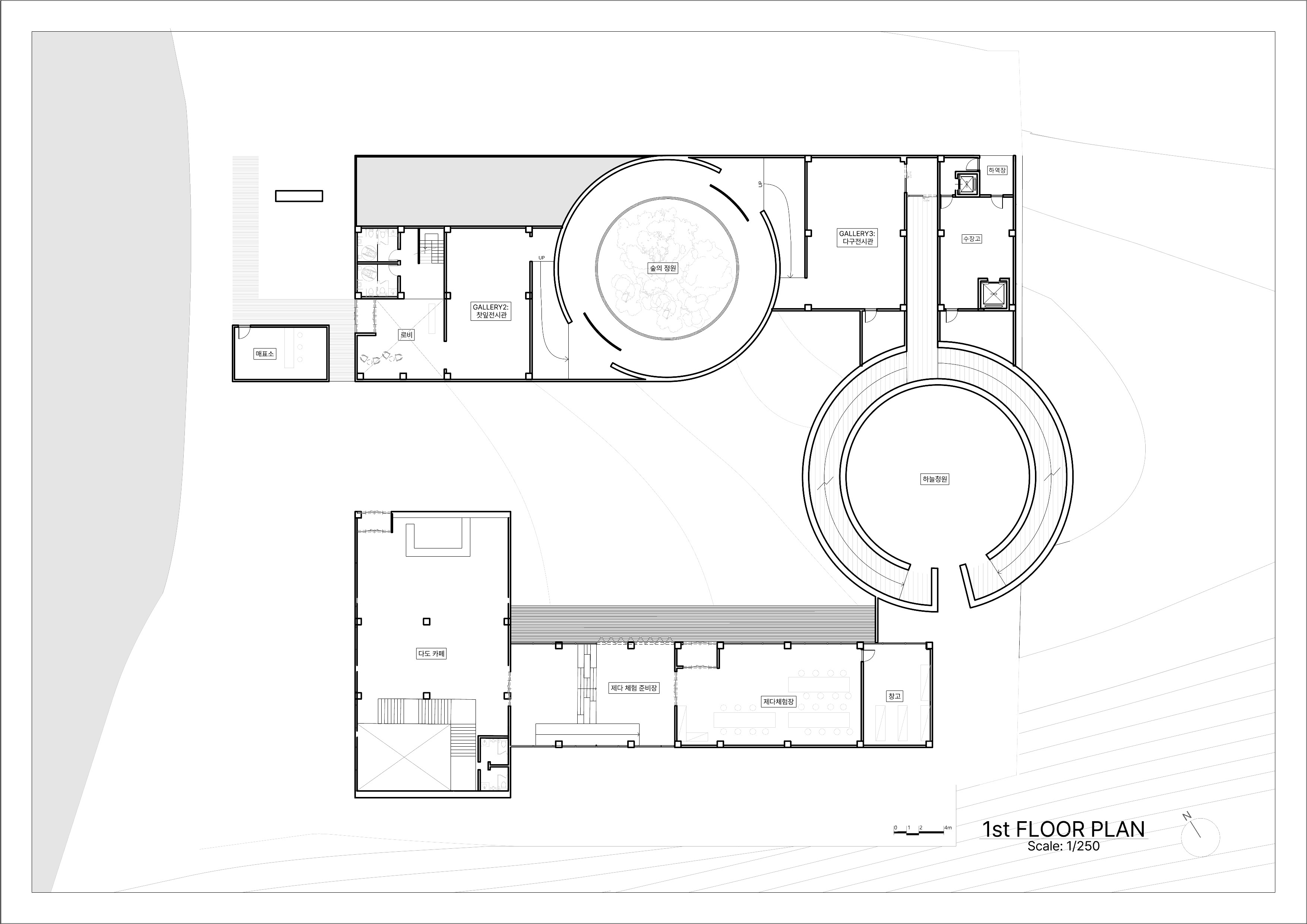
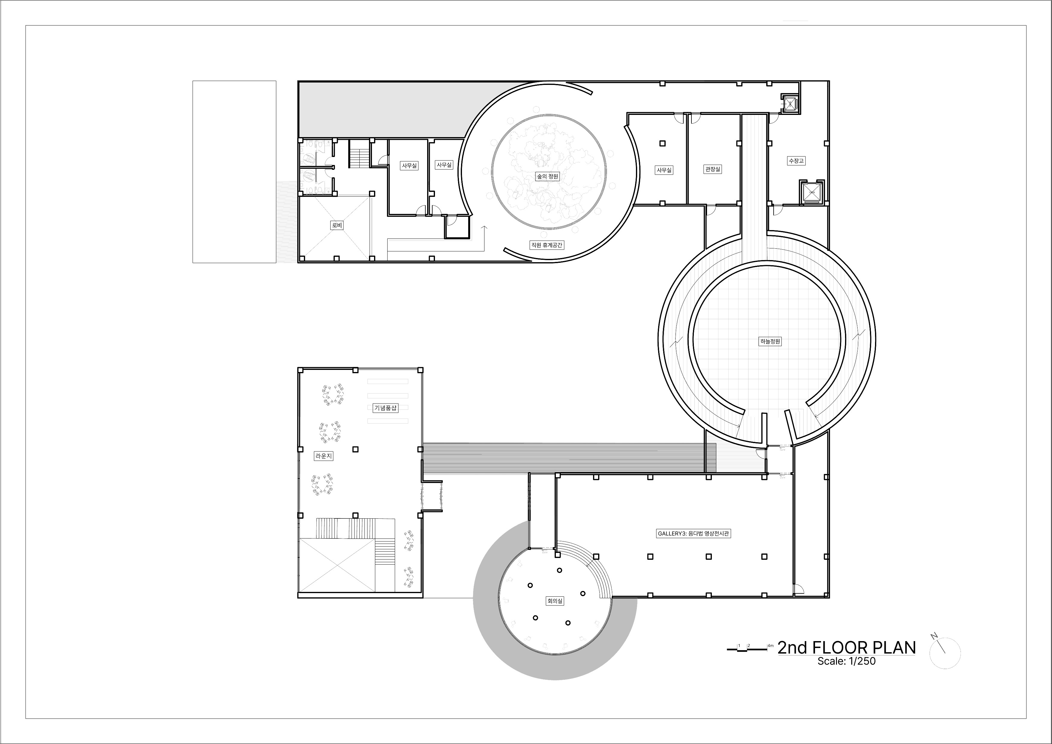
설계는 교류의 사각형 매스와 치유의 원통형 매스의 기하학적 대비를 기반으로 한다. 사각형 매스는 사회적 상호작용과 대화가 일어나는 ‘교류’의 장으로서 타인과 연결되는 공간감을 제공하며, 원통형 매스는 시선을 내부로 수렴시켜 외부와 단절된 채 자신에게 집중하는 ‘치유’의 공간을 의미한다. 관람객은 정결의 공간을 지나 기다림과 교류가 반복되는 동선을 통해 점진적인 심리적 해방에 이르게 된다.
전시 시퀀스는 치유를 상징하는 세 개의 정원을 단계적으로 거치며 완성된다. ‘숲의 정원’에서 외부의 소음을 여과하고 고요히 내면을 응시하는 것을 시작으로, ‘하늘 정원’의 수직적 개방감을 통해 감정의 고조를 경험한다. 마지막으로 ‘물의 정원’에서 내면의 성찰을 경험하고 이후 거대한 호수와 폭포는 성찰의 마침표이자 해방의 순간을 선사한다.
최종적으로 티뮤지엄 ‘연시’는 단순히 차를 마시거나 작품을 감상하는 기능을 넘어, 현대인의 분절된 시간을 잇고 확장하는 건축적 장치로 기능한다. 건축이 인간의 삶의 속도와 치유에 어떻게 관여할 수 있는지를 보여주는 사유의 장소가 될 것이다.





