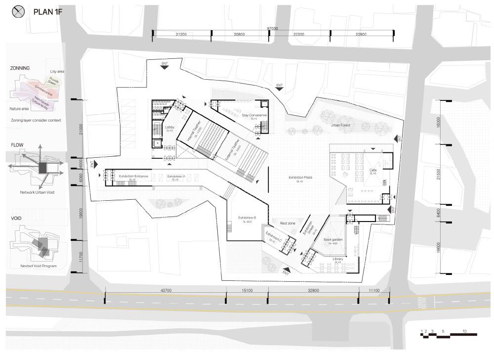
VOID PLANNING
도시 보이드를 연결하는 복합문화시설










1970년대 많은 우리나라의 도시가 확장되었지만, 오늘날 지방 도시는 인구가 유출되며 도시공간과 밀도가 줄어드는 도시 스펀지화 현상이 일어나고 있습니다.
충장로 구도심도 다르지 않습니다. 활성화된 가로변의 건축물과 달리, 블록 내부의 건축물과 땅은 공실 된 노후 건축물로, 주차장 혹은 나지로 방치되어 있습니다.
비어있는 땅의 새로운 기회는 무언가로 채우는 것이 아닌, 공공을 위해 비워놓아 가능성을 열어두고자 했습니다.
Void Planning. 비어있는 공간을 설계하며, 주변 보행권의 문화시설과 연계하는 빈 공간을 만들어 새로운 충장로, 새로운 블록의 유형을 제안합니다.